-
방배6구역이 재건축되어 분양하는 래미안원페를라 분양가, 분양일정, 입주일정, 입지분석, 학군, 평면도 등에 대해서 알아보겠습니다.

래미안원페를라 분양정보 총정리 래미안원페를라 분양가
정확한 분양가는 나오지 않았지만, 최근 신반포 메이플 자이가 평당 6700만 원에 나온 것으로 미루어보면 약 평당 5000~5500만 원으로 분양할 것으로 추정하고 있습니다. 정확한 분양가 정보가 나오면 업데이트하도록 하겠습니다.래미안 원페를라 예상수익
대략 평당 분양가를 5000만 원으로 계산해 보면, 59 타입의 경우 12억, 84 타입의 경우, 17억으로 계산됩니다.연식인 10년 차이가 나지만 방배롯데캐슬아르떼 아파트 기준으로 일반 분양 당첨 시 에상수익을 계산해 보도록 하겠습니다.
아르떼의 경우 24평이 18억, 34평이 22.8억 정도 한다고 가정했을 때,
24평의 경우 안전마진이 최소 6억, 34평인 경우 약 5억입니다.
래미안원페를라 입주 및 분양일정
- 분양일정: 2024년 연내
- 입주예정시기: 2025년 4월
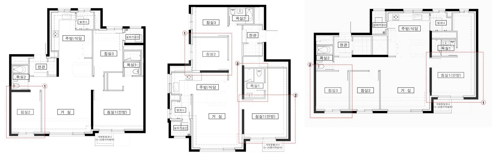
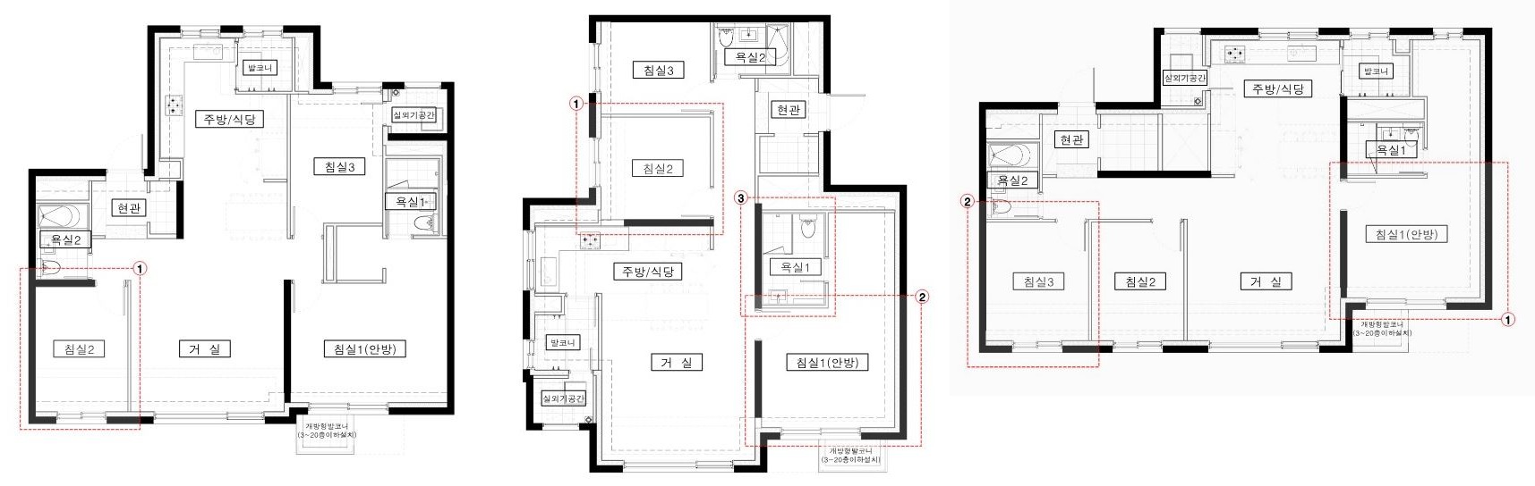
래미안원페를라 평면도
위 링크를 통해 래미안 원페를라의 전체평수 및 다른 타입에 대한 평면도를 자세히 보시고 청약 시 타입을 정할 때 도움을 받으시기 바랍니다.
왼쪽부터 59A, 59B, 59C 
왼쪽부터 84A, 84B, 84C 래미안원페를라 개요
- 세대정보: 총 1,907 세대 중 일반분양은 465세대
- 규모: 총 16개동 (지하 4층~지상 최고 22층)
- 일반분양 공급세대수
전용면적 공급세대수 24평 (59제곱미터) 141세대 34평 (84제곱미터) 324세대 래미안원페를라 입지 분석
래미안원페를라에서 가장 가까운 지하철역(400m)은 7호선 내방역으로 도보 4분 거리에 있습니다.또한, 4,7호선이 지나는 이수역의 경우는 도보로 14분이며, 900m 거리에 있습니다.
7호선을 이용할 수 있어 논현역까지 지하철역으로 3정거장으로 강남까지 직주근접이 매우 좋습니다.
7호선 내방역 400m 도보 4분 거리 4,7호선 이수역 900m도보 14분 거리 

래미안원페를라 학군
학교 정보초,중,고 모두 도보로 통학기 가능한 거리에 있어 학군 측면에서는 아주 좋습니다.
- 초등학교: 방배초(410m)
- 중학교: 서문여중(388m), 방배중(1km), 이수중(1.2km)
- 고등학교: 서문여고(276m), 서초고(1.6km), 동덕여고(1.8km)
학원가 살펴보기
아파트 인근에는 학원가가 약 200개가 넘게 있어 교육에 있어서는 문제가 없습니다. 고등학생이라면 반포까지 2 정거장이면 가기 때문에 반포 학원가를 이용할 수도 있겠습니다.

래미안원페를라 학원가 지도 함께 보면 좋은 글
신반포 메이플자이 분양가 분양일정 청약조건 학군 예상수익 8억?
신반포 4 지구 재건축 단지인 잠원동 신반포 메이플자이 분양가, 분양일정, 청약 조건, 예상 수익(안전마진)에 대해서 총정리해보겠습니다. 마지막에는 제 개인적인 의견을 더해 장점을 정리해
1infoblog.com
아크로 드 서초신동아 안전마진 24평/34평 지금 들어가도 될까?
서초 신동아 재건축 단지를 둘러 보고 왔습니다. 서초 신동아 안전마진에 대해서 계산해보겠습니다. 이 글의 목차는 아래와 같습니다. 진행 상황 서초신동아 안전마진 - 25평 서초신동아 안전마
1infoblog.com
'부동산' 카테고리의 다른 글
서초 신동아 아크로 드 서초 권리가액 정보 (0) 2024.03.27 2024 생애 최초 주택 취득세 200만원 감면 조건 신청하기 환급 가능 (0) 2024.03.17 신생아 특례대출 금리 조건 1주택 대환 가능여부 (0) 2024.01.07 신반포 메이플자이 분양가 분양일정 청약조건 학군 예상수익 8억? (1) 2024.01.06 상생임대주택 조건 혜택 신청방법 다주택자 비과세 방법 (0) 2024.01.04
