-
오늘은 200세대 이상 일반분양으로 나올 래미안 원펜타스 분양정보 및 청약일정에 대해서 알아보겠습니다.
래미안 원펜타스 실제사진 보기
래미안 원펜타스 청약하러가기 래미안 원펜타스 청약일정 확인 최근 청약경쟁률 확인하기 [함께 보면 좋은 글]
아크로 드 서초 신동아 재건축 안전마진 계산하기. 지금 들어가도 될까?
서초구 방배 5구역 디에이치방배 분양일정, 예상 분양가, 시세 차익 학군 등 분양정보 총정리아크로 드 서초신동아 안전마진 24평/34평 지금 들어가도 될까?
서초 신동아 재건축 단지를 둘러 보고 왔습니다. 서초 신동아 안전마진에 대해서 계산해보겠습니다. 이 글의 목차는 아래와 같습니다. 진행 상황 서초신동아 안전마진 - 25평 서초신동아 안전마
1infoblog.com
서초구 방배5구역 디에이치방배 분양정보, 청약일정, 예상 분양가, 시세차익, 학군 등 총정리
강남권에서 대규모 일반 분양을 앞두고 있는 방배5구역 재건축 디에이치 방배 예상 분양가, 시세차익, 청약일정, 학군, 세대수(일반공급세대수), 커뮤니티/시설, 입지 등을 총정리하였습니다. 방
1infoblog.com
래미안 원펜타스 예상 분양가
래미안 원펜타스는 2021년 5월에 토지 감정을 하고 나서 후 분양을 하는 아파트 입니다. 당시 인정받은 감정평가 금액은 4169만원/평 이었습니다. 앞서 성황리에 분양했던 래미안원베일리, 메이플 자이보다 더 저렴한 수준인데요.
예상 분양가는 6500만원/평 정도로 예상하고 있습니다.
이를 계산해보면
59타입(24평) 기준으로는 17억84타입(34평) 기준으로는 22억
정도가 예상됩니다.
래미안 원펜타스 시세차익
위쪽 아크로리버파크(일명 아리팍) 가격이 25평 26억, 33평이 27억이며
가장 최근에 분양한 래미안 원베일리의 경우 25평 기준 29억, 34평 기준 40억으로
시세차익은 20평대의 경우 10억, 30평대의 경우 15억이 이상이 예상됩니다.

래미안 원펜타스 청약 일정
4월에 사전점검이 완료되어 6월 10일부터는 조합원 입주가 시작됩니다.
그러므로 일반 분양은 7월에 나올 것이라 보고 있습니다.업데이트 되는 정확한 청약일정은 청약캘린더를 확인하세요!
청약캘린더 청약일정 확인하기 비쁘신 일상 속에서 청약을 잊지 않으려면 "청약 알리미"신청을 해보세요! 청약일정이 나오면 모바일로 안내해 줍니다.
청약알리미 신청하기 래미안 원펜타스 청약 시 주의사항
추첨물량은 60세대 정도 될 것으로 예상되며, 현재 강남3구는 투기과열지구로 실거주 의무 3년이 필요하며, 전매제한도 3년입니다. 가장 중요한 대출의 경우 LTV 50%제한에 걸리게 되며, 자금조달계획서를 제출해야하오니 참고하시기 바랍니다.
또한, 최근 분양을 진행한 메이플 자이는 10~20평대 위주로 청약을 하였는데, 24평형 6세대가 경쟁률이 3500:1정도 되었으며 당첨가점은 70점대 후반이었습니다.
래미안 원펜타스 학군
학군수요도 많지만, 선택지도 넓습니다.모두 도보로 가능한 거리이며 아파트 주위가 모두 학교라 아이키우기에도 너무나도 좋은 환경일 것으로 예상됩니다.
1) 초등학교
사실 반포동이라는 것만으로도 이미 학군의 열기가 느껴지지 않나요.
바로 옆 반포초가 있는데다가, 사립초인 계성초도 가깝습니다. 또한, 덜위치칼리지영국학교도 학비가 비싸더라도 외국인 학교를 보내고 싶은 부모님들께서는 참고하실만한 정보 입니다.
2) 중학교
세화여중(여중), 신반포중(공학), 반포중(남중)
3) 고등학교
세화고(공학), 세화여고(여고)래미안 원펜타스 일반분양 세대수
총 641세대 중292세대
292세대는 아래와 같이 구성되어있습니다.타입 세대 수 59 37 84 215 107 21 137 11 155 4 191 4
지하 4층부터 35층까지 지어지며 총 6개동으로 구성되어 있는 작은 단지입니다. 그러나 최근 분양된 메이플 자이가 소형평형이 많았다면, 래미안 원펜타스의 경우 국민평형(84타입)이 215단지로 가장 많습니다!최근 청약경쟁률 확인하기
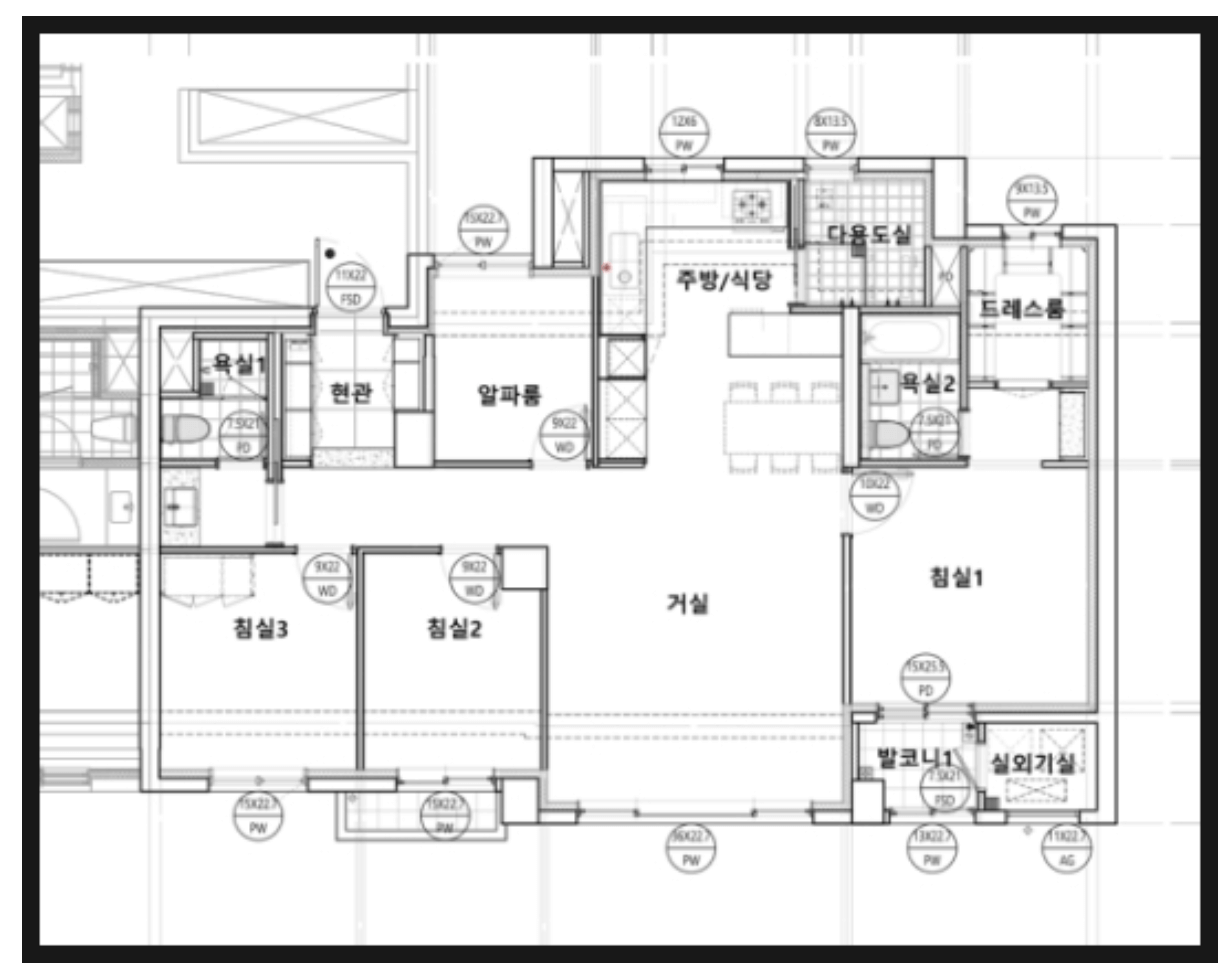
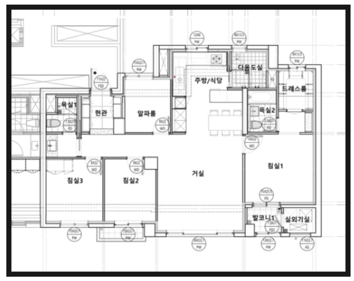
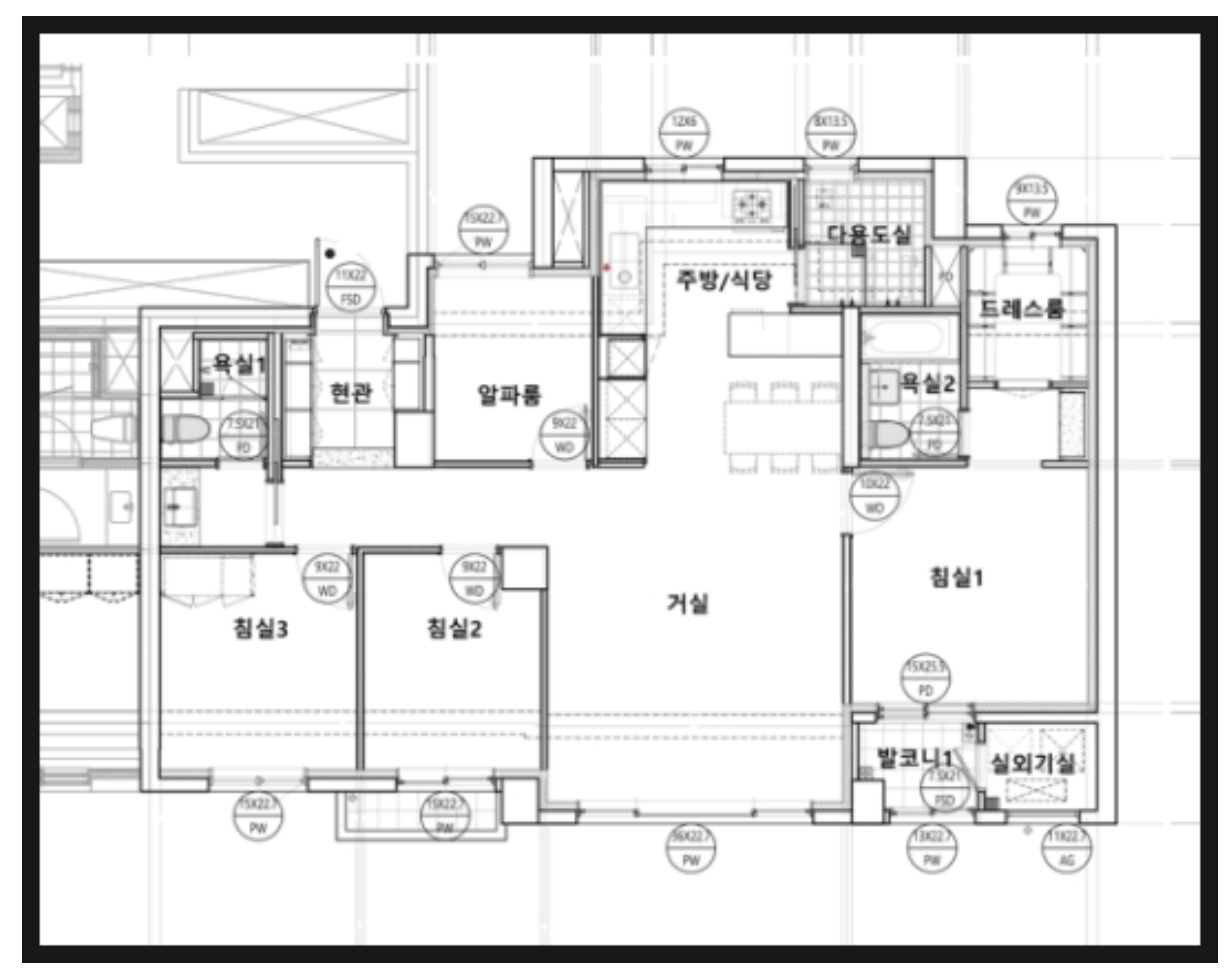
평면도
24평형 A 타입 평면도입니다.
34평 A 타입 평면도입니다. 알파룸이 있어 가장 인기가 많을 것으로 예상됩니다.

래미안 원펜타스 커뮤니티
조식서비스/독서실/수영장/게스트하우스/스카이 라운지 등 시설이 다양하며, 주차 대수가 2.14대로 아주 넉넉합니다 :)
무인이긴하지만 편의점과 카페도 입점될 예정이라고 하니 거주자들은 정말 편리하겠어요.
어느 순간 커뮤니티가 당연하게 되어버린 신축 아파트들~~ 당첨되시는 분들 너무 부러울 것 같습니다!
위치
서울시 서초구 반포동 12번지
래미안 원펜타스 입지
신세계 백화점도 가깝고, 한강공원도 가까워서 산책에도 좋은 입지 입니다. 강남성모병원도 차로 3분, 걸어서 25분 거리입니다.
정말 살기 좋지 않나요?래미안 원펜타스 전화문의 고객센터 번호
1588-3588
래미안 원펜타스 실제사진 보기
래미안 원펜타스 청약하러가기 래미안 원펜타스 청약일정 확인 최근 청약경쟁률 확인하기 
래미안 원펜타스 예상분양가 청약정보 '부동산' 카테고리의 다른 글
방배5구역 디에이치방배 분양정보, 청약일정, 예상 분양가, 시세차익, 학군 등 총정리 (1) 2024.06.04 서초 신동아 아크로 드 서초 권리가액 정보 (0) 2024.03.27 2024 생애 최초 주택 취득세 200만원 감면 조건 신청하기 환급 가능 (0) 2024.03.17 래미안원페를라 분양가 분양일정 평면도 입지분석 예상수익 총정리 (0) 2024.01.07 신생아 특례대출 금리 조건 1주택 대환 가능여부 (0) 2024.01.07